アズエステート
06−6532−5500
大阪市西区・大阪市中央区を中心の賃貸情報!
堀江・四ツ橋・本町・心斎橋などの便利でお洒落な街で-NEW YOUR LIFE-






広域で検索できます

―information―




*お薦め賃貸情報* ―宝塚市― 

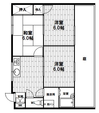
3LDK 宝塚市山本中2丁目 ―ファミーユ宝塚―



交通 阪急宝塚線 山本駅 徒歩8分
所在地 宝塚市山本中2-8-16
築年数 1992年12月
お勧め
ポイント
静かな環境
1階・南向き・独立角部屋
広さ充実
お勧め物件空がでました!
間取:3LDK 面積:60.02u
階建/所在階:3階建/1階
賃 料:
77,000円
管理費:5,000円
水道代:検針
敷金:0円/礼金:100,000円
設備:BS・CS・CATV
給湯・ガスキッチン・シャンプードレッサー
室内洗濯機置場・駐輪場 他
 
詳細
コメント キッチン・シャンプードレッサー交換。明るく広々リビングがお勧め。


*お薦め賃貸情報* ―京都市― 

1K 京都市西京区大枝沓掛町 ―Graffiti Matsui―



交通 阪急京都線 桂駅 バス17分
洛西シミズ病院前バス停 徒歩1分
所在地 京都市西京区大枝沓掛町10-122
築年数 1997年8月
お勧め
ポイント
セパレート・2面採光!
バイク置場・駐車場空
間取:1K 面積:25u
階建/所在階:3階建/2階
賃 料:
43,000円
管理費:4,000円
水道代:2,500円
敷金/礼金:0円/43,000円
設備:エアコン・ガス1口・室内洗濯機置場
    TVモニターホン・給湯・下駄箱

現況:内装中 
詳細
コメント 更新料なし。バイク置場・駐車場あきございます。角部屋・2階です。
間取:1K 面積:25u
階建/所在階:3階建/3階
賃 料:
40,000円
管理費:4,000円
水道代:2,500円
敷金/礼金:0円/40,000円
設備:エアコン・ガス1口・室内洗濯機置場
    TVモニターホン・給湯・下駄箱
他 
詳細
コメント 更新料なし。バイク置場・駐車場あきございます。最上階・角部屋
間取:1K 面積:25u
階建/所在階:3階建/3階
賃 料:
43,000円
管理費:4,000円
水道代:2,500円
敷金/礼金:0円/40,000円
設備:エアコン・ガス1口・室内洗濯機置場
    TVモニターホン・給湯・下駄箱
他 
現況:内装中
詳細
コメント 更新料なし。バイク置場・駐車場あきございます。最上階
間取:1K 面積:25u
階建/所在階:3階建/2階
賃 料:
40,000円
管理費:4,000円
水道代:2,500円
敷金/礼金:0円/40,000円
設備:エアコン・ガス1口・室内洗濯機置場
    TVモニターホン・給湯・下駄箱
他 
詳細
コメント 更新料なし。バイク置場・駐車場あきございます。角部屋・2階です。


1K 京都市山科区日ノ岡堤谷町 ―Wynn御陵―



交通 地下鉄東西線 御陵駅 徒歩3分
京阪電鉄京津線 御陵駅 徒歩3分
所在地 京都市山科区日ノ岡堤谷町1-10
築年数 1980年1月
お勧め
ポイント
駅近く便利!
使いやすい間取り
更新料なし。敷金・礼金もなし。
駐車場空(軽車両)
間取:1K 面積:17.82u
階建/所在階:3階建/1階
賃 料:
34,000円
管理費:3,000円
水道代:2,000円
くらしーど24:1,000円
敷金/礼金:0円/0円
設備:エアコン・ガスキッチン・給湯
   バルコニー洗濯機置場・CATV・NTT光
他 
詳細
コメント 更新料なし。即入居可能。軽車両駐車場空きあり


*お薦め賃貸情報* ―吹田市― 

1K 吹田市寿町1丁目 ―ビスタ寿―



交通 阪急千里線 吹田駅 徒歩5分
所在地 吹田市寿町1-16-1
築年数 1984年4月
お勧め
ポイント
静かな環境
3階最上階角部屋
広さは充分
お勧め物件空がでました!
間取:1K 面積:17.11u
階建/所在階:3階建/3階
賃 料:
40,000円
管理費:3,000円
水道代:2,000円
敷金:0円/礼金:0円
設備:ガスキッチン・エアコン・収納
給湯・洗濯機はバルコニー可 他
 
詳細
コメント 明るく角部屋がお勧め。即入居可能。


2LDK 吹田市片山町1丁目 ―冨岡ハイツ―



交通 JR京都線 吹田駅 徒歩8分
所在地 吹田市片山町1-23-8
築年数 1990年7月
お勧め
ポイント
静かな環境
3階最上階角部屋
広さは充分
お勧め物件空がでました!
間取:2LDK 面積:59.71u
階建/所在階:3階建/3階
賃 料:
110,000円
管理費:0円
水道代:検針
敷金:50,000円/礼金:250,000円
設備:システムキッチン(3口)・収納
給湯・防パン・温水便座 他
 
詳細
コメント 南向きの明るいお部屋。敷地内駐車場・バイク置場空きあり


*お薦め賃貸情報* ―大阪市― 

1K 大阪市中央区 ―ラピス天満橋―



交通 OsakaMetro 谷町線 天満橋駅
              徒歩5分
京阪本線 天満橋駅  徒歩7分
所在地 大阪市中央区内平野町1-3-4
築年数 2000年3月
お勧め
ポイント
TVモにターホン
眺望良好
室内綺麗に改装
便利な立地
間取:1K 面積:約21u
階建/所在階:10階建/8階
賃 料:
60,000円
管理費:6,000円
水道代:2,000円
敷金/礼金:0円/1ヶ月
設備:セパレート・TVモニターホン・ガスキッチン
温水洗浄便座・エアコン 他
 
詳細
コメント NTT・KDDI光ファイバー・CATV
間取:1K 面積:約21u
階建/所在階:10階建/9階
賃 料:
59,000円
管理費:6,000円
水道代:2,000円
敷金/礼金:0円/1ヶ月
設備:セパレート・TVモニターホン・ガスキッチン
温水洗浄便座・エアコン 他
 
詳細
コメント NTT・KDDI光ファイバー・CATV


1Room 大阪市西区新町1丁目 ―シティビラ佐々木―



交通 四つ橋線 四ツ橋駅 徒歩3分
所在地 大阪市西区新町1-8-10
築年数 1985年4月
お勧め
ポイント
南向きの最上階
角部屋
ピッタリワンルーム
お勧め物件空がでました!
間取:1Room 面積:16.14u
階建/所在階:7階建/7階
賃 料:
45,000円
管理費:8,000円
水道代:基本料込み
敷金:0円/礼金:1ヶ月
設備:ガスキッチン・エアコン
給湯・洗濯機はバルコニー可 他
 
詳細
コメント 明るく最上階角部屋がお勧め。


*お薦め賃貸情報* ―西宮市― 

1LDK 西宮市浜甲子園2丁目 ―グランドハイツ浜甲子園―



交通 阪神本線 甲子園駅 徒歩18分
所在地 西宮市浜甲子園2-10-24
築年数 1970年4月
お勧め
ポイント
犬・猫飼育相談(1匹)
ららぽーと甲子園徒歩圏内
明るい居室
浴室にも窓有!
間取:1LDK 面積:約40u
階建/所在階:5階建/1階
賃 料:
65,000円
管理費:5,000円
水道代:実費
敷金:0円/礼金:賃料の2ヶ月
設備:TVモニターホン・NTTネット(個別契約)・エアコン
給湯・シャンプードレッサー・ガスキッチン他
 
詳細
コメント ペット飼育相談が魅力。(小型犬・猫のどちらか1匹)。海沿い散歩できます
間取:1LDK 面積:約40u
階建/所在階:5階建/2階
賃 料:
62,000円
管理費:5,000円
水道代:実費
敷金:0円/礼金:賃料の2ヶ月
設備:TVモニターホン・NTTネット(個別契約)・エアコン
給湯・シャンプードレッサー・ガスキッチン他
 
詳細
コメント ペット飼育相談が魅力。(小型犬・猫のどちらか1匹)。海沿い散歩できます
間取:1LDK 面積:約40u
階建/所在階:5階建/2階
賃 料:
63,000円
管理費:5,000円
水道代:実費
敷金:円/礼金:賃料の2ヶ月
設備:TVモニターホン・NTTネット(個別契約)・エアコン
給湯・シャンプードレッサー・ガスキッチン他
 
詳細
コメント ペット飼育相談が魅力。(小型犬・猫のどちらか1匹)。海沿い散歩できます
間取:1LDK 面積:約40u
階建/所在階:5階建/4階
賃 料:
62,000円
管理費:5,000円
水道代:実費
敷金:円/礼金:賃料の2ヶ月
設備:TVモニターホン・NTTネット(個別契約)・エアコン
給湯・シャンプードレッサー・ガスキッチン他
 
詳細
コメント ペット飼育相談が魅力。(小型犬・猫のどちらか1匹)。海沿い散歩できます


*お薦め賃貸情報* ―高槻市― 

1Room 高槻市芥川町4丁目 ―メゾン高槻―



交通 JR京都線 高槻駅 徒歩7分
所在地 高槻市芥川町4-5-18
築年数 2003年全面リフォーム
お勧め
ポイント
セパレート
設備充実
角部屋
明るいお部屋です!
間取:1LDK 面積:約35u
階建/所在階:4階建/4階
賃 料:
70,000円
管理費:4,000円
水道代:実費
敷金:0円/礼金:140,000円
設備:TVモニターホン・CATV
給湯・エアコン・ガスキッチン他
 
詳細


1LDK+ロフト 高槻市芥川町4丁目 ―クレスト―



交通 JR京都線 高槻駅 徒歩7分
所在地 高槻市芥川町4-1-17
築年数 2006年全面リフォーム
お勧め
ポイント
セパレート
設備充実
ロフト付
明るいお部屋です!
間取:1LDK+ロフト 面積:約35u
階建/所在階:2階建/2階
賃 料:
68,000円
管理費:4,000円
水道代:実費
敷金:0円/礼金:136,000円
設備:TVモニターホン・CATV
給湯・エアコン・ガスキッチン他
 
詳細



2DK 高槻市芥川町4丁目 ―中屋一号館―



交通 JR京都線 高槻駅 徒歩10分
所在地 高槻市芥川町4-9-14
築年数 1989年6月
お勧め
ポイント
セパレート
お洒落なハイツ
全室角部屋
エアコン2基
明るいお部屋です!
間取:2DK 面積:約40u
階建/所在階:2階建/2階
賃 料:
74,000円
管理費:4,000円
水道代:実費
敷金:0円/礼金:148,000円
設備:TVモニターホン・CATV
給湯・エアコン2基・ガスキッチン他
 
詳細


―ここから下は現在商談中物件です。―


上記記載物件以外にも多数物件を取り揃えております。
お気軽にお問せ下さい。




トップページ | 店舗案内| 物件検索 | お問合せ | 個人情報取扱について
有限会社アズエステート
copyright (C) 2003 azestate All Rights Reserved.
〒550-0013 大阪市西区新町1-7-5 3F
TEL06-6532-5500 FAX06-6532-5505
E-mail:info@az-estate.com
営業時間10:00〜18:00

定休日:年末年始・GW・夏季